1172:中古戸建 結城 住吉 平家4DK
| 価格 | 1,350万円 |
|---|---|
| 所在地 | 結城市結城573-2 |
| 最寄駅 | 結城駅まで 徒歩8分 600m |
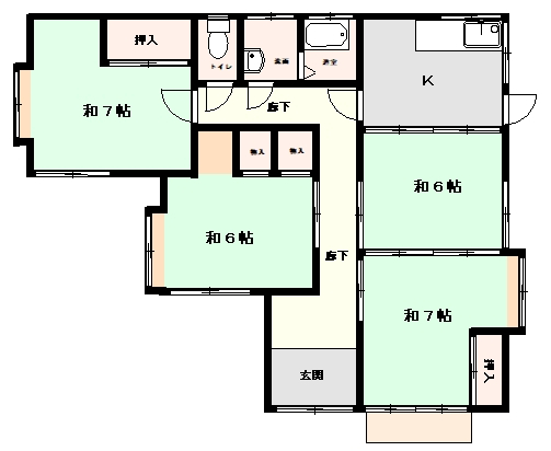
| 間取 | 4DK |
| 土地面積 | 433.71m²(131.19坪) |
| 建物面積 | 78.65m²(23.79坪) |
| 私道面積 | |
| 築年月 | 1981/04 |
| 学区 | 小学校区:結城 1,300m 中学校区:結城東 1,000m |
| 建物構造 | 木造 |
|---|---|
| 階建 | 地上1階建 |
| 建ぺい率 | 60% |
| 容積率 | 200% |
| 地目 | 宅地 |
| 用途地域 | 第一種住居地域 |
| 土地権利 | 所有権 |
| 取引態様 | 一般媒介 |
| 引渡時期 | 相談 |
| セットバック | |
|---|---|
| 接道 | 南 5.5m(幅員) 公道 南西 6m(幅員) 公道 |
| 諸費用 | |
| 他法条例 | |
| 建築確認番号 | |
| 取引条件有効期限 | 令和08年2月5日 |
特色
平家戸建て 公営水道、公共本下水、駐車場、角地
周辺地図
位置情報に関するご注意:現在位置情報は精査中の為、正確ではない場合があります。あくまで参考程度の情報となります。























